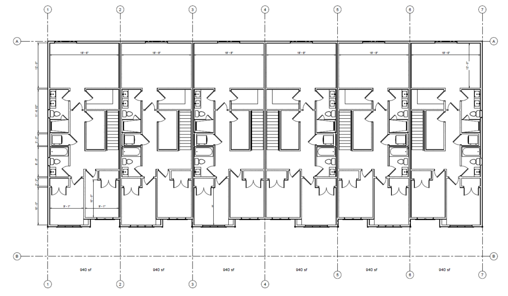
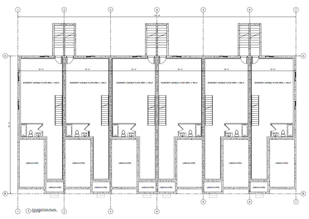
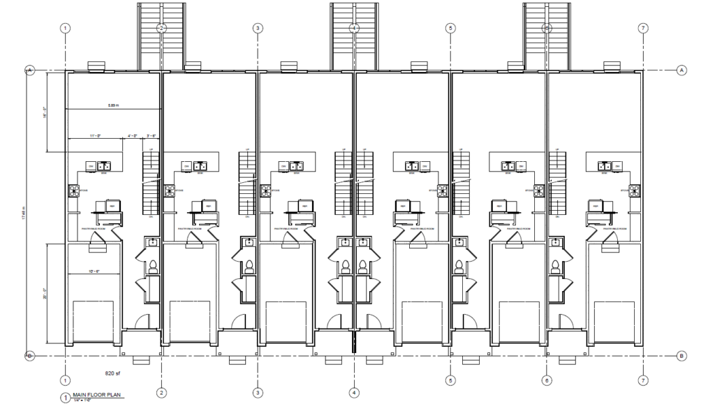
- Project Value: $10 Million
- Scope: Secured rezoning and developed the site plan for an 18-unit townhome development.
- Key Detail: Provided critical pre-construction planning and municipal approval services for a major residential development.










Comprehensive renovation of an existing Mississauga home, featuring major structural improvements and interior upgrades. Successfully...
Transformed an existing Toronto waterfront property with extensive renovations, modernizing the home and enhancing both...
Luxury 4-bedroom custom home in Oakville, built from the ground up with full permit approvals...