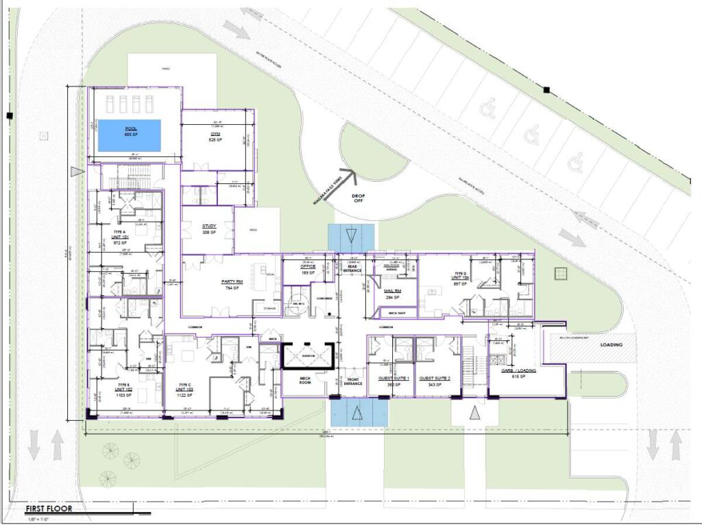
- Project Value: $40 Million
- Scope: Secured rezoning and developed the site plan for a 70-unit, 8 storey condominium building development.
- Key Detail: Provided critical pre-construction planning and municipal approval services for a major residential development.









